

Beatrice在《神曲》中代表着圣洁、美丽;
而常州药物研究所旗下的Beatrice不仅代表着美,
更是母公司在医美研究上30余年的高标准成果。
设计师以木色和弧形延伸,代表女性的温柔;
以混凝土、大理石和钢材,代表女性的刚强。
于刚柔之间,打造了一个客户专属的医美空间,
并通过灯光的变幻,展现了一个拥有全新技术服务的高科技会所。
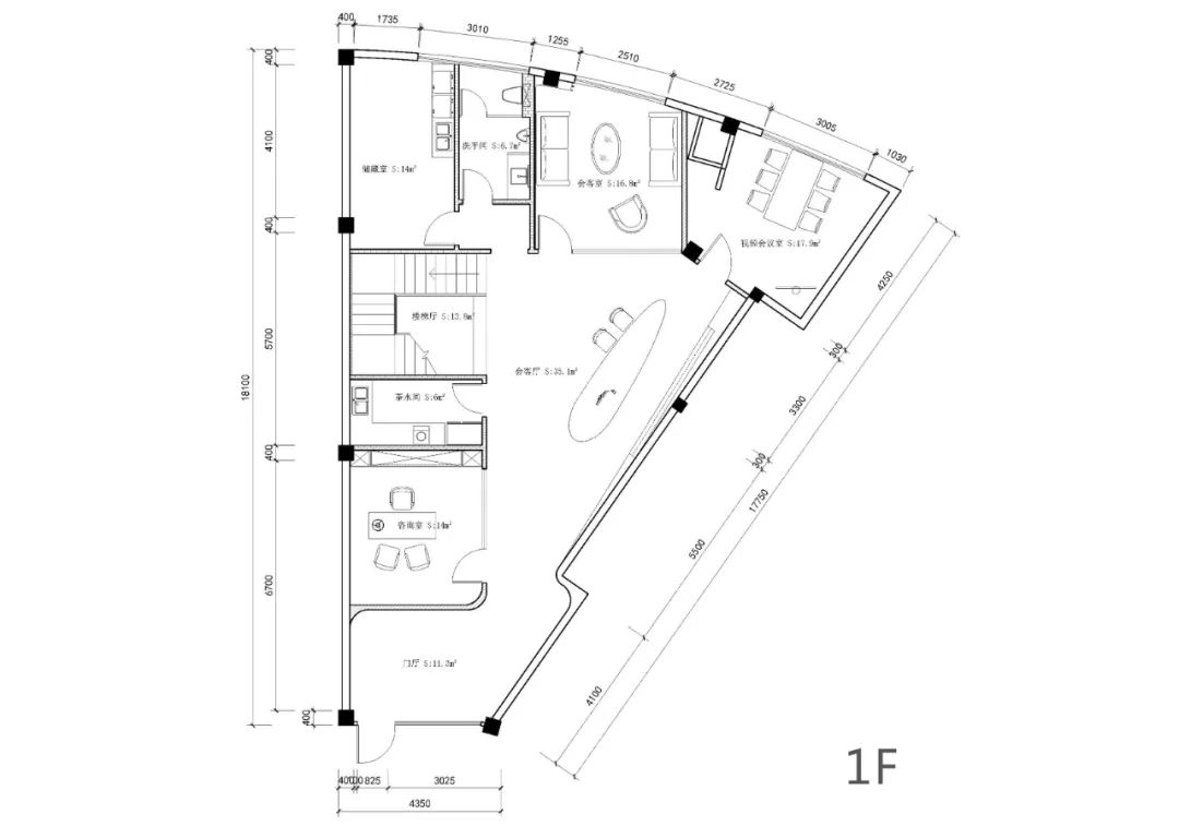
原始结构图 Original structure


三角式户型对空间设计有一定要求。
Beatrice的客户定位是中高端的女性,设计也需要简洁、有品位。
平面方案图 Floor Plan


一楼将异形区域打造成会客厅,独具特色,空间开阔之余,也显大家风范。
一楼的规则墙体做功能区,既充分利用了空间,也让每个房间保持一定程度的方正。
二楼利用异形区域构建了医废暂存处与拍照室,平衡了空间与功能的关系,并用柜子弱化了不规则的形态。
会客厅 Reception room


进入空间,厉冷的混凝土与温润的木面形成强烈对比,带来了极大的冲击感。
视觉上弧度的延伸交织,内含女性柔情似水的特征。
当进入者缓缓而行,刚与柔的乐章便开始奏响。



以预约服务体系为依据,空间动线组织由公共空间接待到功能区的VIP会客室。
通过艺术化的百叶帘,既保障洽谈期间的私密性,也能与光影协作,展现高雅的会所环境。
楼梯 Stairs



木格栅的清新质感,体现了品牌健康与亲自然的理念,
有效地用环保材料成就了一个舒适的美学空间。
错落的弧形灯带,无限延展了空间。
柔和光影,也让空间的人处于安静舒适的状态中。


柔情的氛围营造,让光成为了主旋律。
阴影沿着大理石梯的边缘舒展,于波光粼粼中,赋予进入者无限想象的空间。
木格栅与大理石也在不同层次的刚柔转换中,带来了旋律的高潮,深情诠释着温柔的力量。
过道 Corridor



物质与精神的交集,或分或合。设计师将灯带嵌入,让光,
如雨雾般洒向木面,将人与自然的情感融入其中,创造了一个和谐水润的艺术空间。
呼应了品牌主题,也为乐章划上了一个圆满的句号。
常州市钟楼区怀德桥后马路南
华景大厦1601室
上海市长宁区红宝石路
188号古北SOHO 1502室
ⓦ:cssj@chanshare.cn
Ⓣ:400-828-9901







