

这是一间顶层复式。屋主是一对90后夫妇,学过美术,住惯了别墅,
想要体验不一样的居住环境,感受特殊的设计美学。
设计师根据屋主的需求,打造了一个浪漫、个性的自由空间。
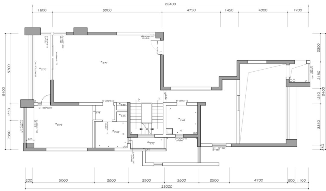
原始图

▲ 一楼空间

▲ 二楼空间
原平面图上是哑铃式户型,走道狭窄,不便于社交,属于居家式空间。
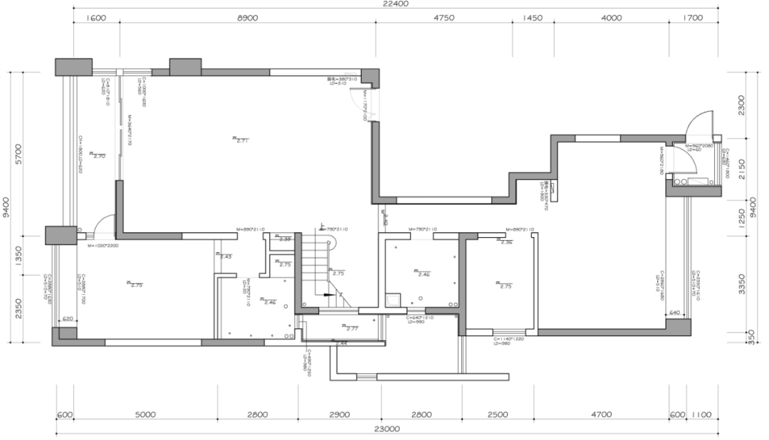
平面图

▲ 一楼空间

▲ 二楼空间
经过改动后,将居家式调整为社交式。
用弧形墙拓展了空间;而餐厨一体化以及超大的客厅也更有利于社交。
客厅




空间贯穿“弧形”这个主题,无论是家具的摆放还是吊顶的设计都有“圆润”之意。
TUCSON图森整体木作为主,高端饰品做衬,将空间的贵气发挥到最大。
蒲苇草花语是忠贞的爱情;尤加利叶的花语是恩赐,
合在一起就是“天作之合”,这是对屋主夫妇爱情的真实写照。
餐厅




开放式的厨房采用现代化设备,
MARAZZI意大利马拉齐瓷砖与Ligne Roset法国写意空间吧椅组合,形成了一道特殊的风景线。
餐厅的电视机设置,让屋主在忙碌的同时,也能与家人一起,享受休闲时刻。
主卧




卧室空间以暗色调为主,而红色Ligne Roset法国写意空间TOGO沙发提高了空间的亮度;
与众不同的现代简约分子灯让整个空间创意十足,更加体现了屋主对个性的追求。
客卧


以深蓝色调为主,玻璃个性床头灯搭配柔和的自然光影,
空间的质感得到了最大的提升,加上床边的助眠香薰,
让入住的客人都有宾至如归的感受。
书房

HC28书柜大胆采用黄色、蓝色进行点缀,打破了传统书房的沉闷,
让空间洋溢起艺术与个性的气息。
卫生间




高品质的Villeroy & Boch德国唯宝洁具以及Dornbracht德国当代水龙头提升了空间的格调;
每个卫生间在放置香薰的同时,还在柜台下设置了一个开放空间,
加强了空气循环,避免了异味的产生。
楼梯




环形走廊采用“实木阶梯+玻璃扶手”的设计方式,
搭配动人的灯光,加强了空间的明暗对比。
每一层楼的绿植既有“迎宾欢迎”之意,也有客人较多时净化空气之效。
花园

屋顶花园空间,随着时间会发生变化。
清晨,宽阔的草坪象征着生机与活力,
明媚的阳光更是最佳设计元素,让整个空间清新,自然。

饭后,夕阳西下,自然的光影映射在墙上,形成了一幅天然的景观。
浅色的木质扶手沙发,使空间变得和谐、轻松。

深夜,拉起LED彩灯,宽敞空间足以容纳20多人的欢乐party,
空间的浪漫与自由在此刻得到了发挥。
常州市钟楼区怀德桥后马路南
华景大厦1601室
上海市长宁区红宝石路
188号古北SOHO 1502室
ⓦ:cssj@chanshare.cn
Ⓣ:400-828-9901







