序/
“少”不是空白而是精简
“多”不是拥挤而是完.美
——密斯·凡德罗
Preface/
"Less" is not blank, but concise.
"More" is not crowded, but perfect.
——Ludwig Mies Van der Rohe
01
Living room·1F
厨房·1F /
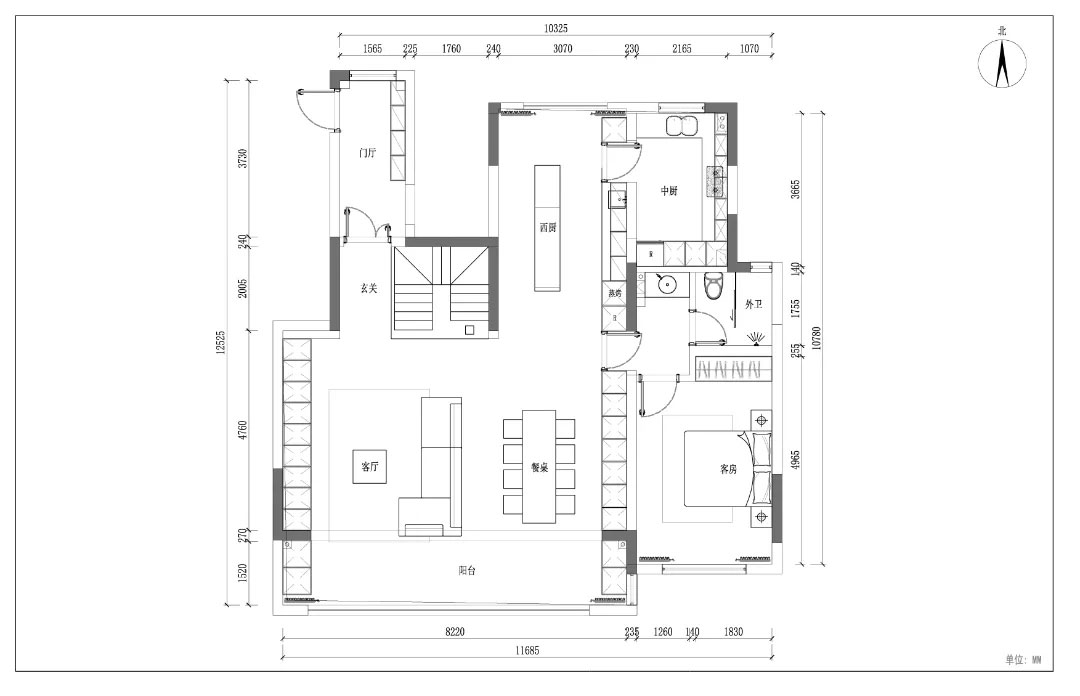
平面图·1F


在这个快节奏的时代,我们渴望在繁忙的生活中找到一片宁静的港湾。而家,正是这样的存在。
本案为两层别墅量身打造的极简主义设计,以"去繁存真"为核心,将自然光景、功能收纳与艺术美学无缝融合,为追求品质生活的主人构建出"简约不简单"的理想居所。
客厅 ·1F/


四周的白色墙柜不仅提供了充足的收纳空间,还与整体色调相协调,营造出一种宁静的氛围。柔软的布艺沙发、简约的茶几和一台电视,便构成了客厅的基本布局,既简约又不失功能性,满足了日常生活的需求。米白色布艺沙发搭配悬浮式岩板茶几,顶部隐藏磁吸轨道灯,光线随昼夜更替在白色收纳柜体上流淌。

客厅·1F /



清新的空气、温暖的阳光,大抵是人们对住宅的美好向往。整面落地玻璃幕墙打破室内外界限,将窗外森林绿植框成一幅动态油画。在这里仿佛置身绿野仙踪,洗去城市的喧嚣。角落增加懒人沙发,提供更加慵懒舒适的休息体验。巧思细节:电视采用可移动设计,兼顾客厅与餐厅多场景观影需求。


充分利用窗边的自然光线,为健身区域提供充足的光照。打开窗,仿佛置身于森林氧吧。通过这样的设计,客厅不仅是一个放松和娱乐的空间,更是一个充满健康和活力的生活场所。在这里,可以在欣赏自然美景的同时,享受健身带来的乐趣和益处。

02
Dinning room·1F
餐厅·1F /


餐厅就落地在大落地窗旁,很好地衔接室内空间与室外景致,将用餐区和观景区自然地相结合,在用餐时也可欣赏窗外美景。天然石材餐桌不仅展现了自然的魅力,还融入了人文的内涵。在极简设计中,它可以成为连接自然与人文的桥梁。以其独特的质感和纹理,为空间增添了一丝静谧与舒适的氛围。



空间的线条蔓延而出,不经意间带动着感官,流畅自然。在餐厅望向窗外,于光影流动间,与家人一起感受感受四季变换,时光温暖清浅,心间细腻如初。

采用简约的吊灯和筒灯作为餐桌照明,避免过多的灯光装饰。灯光应柔和、均匀,以突出石材的质感和纹理。简单的长方形桌面,搭木质桌腿,营造出既现代又自然、既简洁又富有质感的空间氛围。
03
Kitchen·1F
厨房·1F /

楼梯旁是一个开放式的小厨房,配备了烤箱、微波炉和洗菜池等基本设施,可以满足简单的烹饪需求。长条形石台横亘在中间,起到十分自然的过渡作用,方便用餐或工作,并且兼具置物、用餐、饮茶休闲等功能,为空间提供了更多可能性。
而主厨房则隐藏在门后,U型主厨房配备双循环油烟系统,纯白烤漆橱柜与岩板台面形成材质碰撞,隐形把手设计让清洁更从容。延续了极简风格,更注重功能性与美观性的平衡,选择简约而实用的厨具和收纳柜,避免过多的装饰。

04
Other·-1F
卫生间·1F /

为了方便家人和客人的使用,在一楼也设置了卫生间。整体浅色色墙面与地面融为一体,朴实的基调,让空间更加温柔,视觉上一体化干净简洁质感呼之欲出。一旁的客卧加卫生间,为来访的客人提供了舒适的休息空间。

客房·1F /


楼梯·1F /


石材拼接而成的楼梯,从远处看就像是石头自然堆砌而成。整块钢化玻璃扶手与暖色石材阶梯相映成趣,营造出一种简约而现代的感觉。无论从哪个角度看去,都具有极强的的线条感与模块感,给人以震撼的视觉感受。

玻璃楼梯扶手采用隐形嵌入的固定方式,以减少视觉上的干扰,选择整块钢化玻璃以确保安.全性和视觉效果。在楼梯周围留出足够的空白空间,避免过多的装饰和家具,让楼梯也能成为空间的焦点。使空间充满了流动的美感,在行走的过程中感受艺术的美妙。
05
Living room·2F

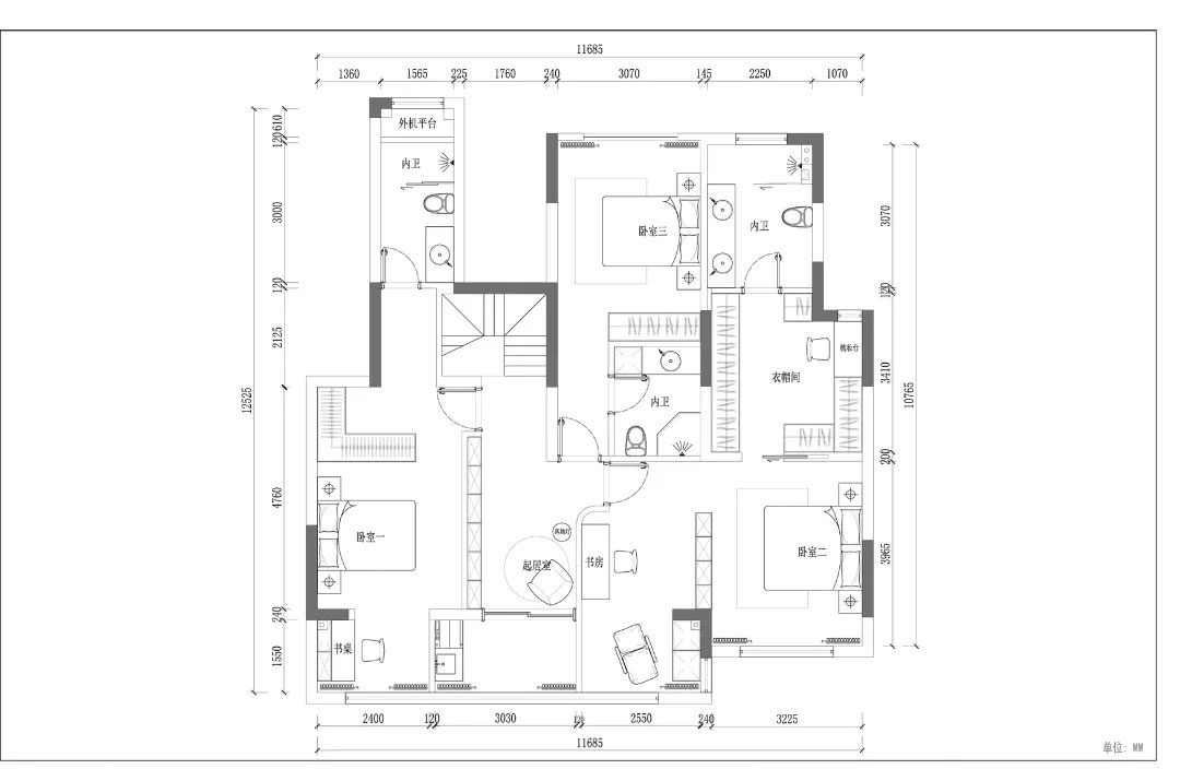
平面图·2F
起居室·2F /


二层设有一间起居室,采用了落地沙发和亚克力展柜墙。落地的懒人沙发提供了宽敞的休息空间,亚克力展柜则可以展示主人的收藏品。整个起居室贯穿到阳台,贯穿到阳台的设计让空间更加通透,让自然光线和新鲜空气充分进入室内。


悠闲午后,坐在阳台上闻着风带来的自然气味,通过这气味感受到季节的变化,慵懒地放空, 吹吹风,看天空, 感受自然带来的轻松。
06
Study·2F
书房·2F /


书房的设计注重功能性,墙上的实木书架提供足够的收纳空间和工作空间。深色调的基底搭配木质元素的温暖,营造出意式极简的沉稳与雅致,配合多层次照明营造出温馨而舒适的工作、阅读氛围。
07
Bedroom /
卧室一·2F /


主卧连着书房,用简单的设计便渲染出了卧室的调性,主题颜色为低调的棕色,营造出一种意式轻奢的儒雅质感。软装和家具的简约与其迎合,提升了空间的精致感。投影仪的设置为家庭娱乐提供便利。

衣帽间·2F /

衣帽间要实现的不止是美观,更重要的是功能和收纳,既要满足日常所需,还要满足长期使用的收纳要求,采用L型的布局,一半开放式,一半玻璃柜门,充分利用了空间,满足家庭成员生活需求。
卫生间·2F /

主卫空间打造的功能性,破除了传统卫生间的简单概念。卫生间设有两个台盆,方便家庭成员同时使用。底部做了收纳台,将水管隐藏至墙体获取更大的收纳空间,简于形,奢于质。浅咖色的柔光砖 ,低饱和度的色调,让人情绪上产生舒缓和平衡,衍生出一种冷静感,一种超越时间的永恒感。为人的活动留下足够自在的空间,属于现代生活的质感油然而生。


卧室二·2F /儿童房


孩子房呈现家庭成员的个性与喜好,以空间与居者的关系构建回归内心最舒适的生活。内置的小书房打造孩子沉浸式的私属空间,并且融合了储物收纳功能,美观且便捷。女孩房则贴合了少女自身的气质,细腻且柔软。低饱和度的粉色是空间一大的亮点,设计师去除繁杂的装饰,让孩子在成长过程中,慢慢丰富空间的形态。

卧室三·2F /



艺术丰润灵魂,俯仰自得。卧室采用极简风的无主灯设计,结合简洁调性的暗藏式光源,局部暖色灯具的照明方式,营造出的空间氛围更加温馨。米灰色的基调在空间中晕染开来,营造出简洁舒适的卧室空间,搭配灰色系的床品,将极简轻奢的质感体现的淋尽致。
Project Location | 项目区位
中国,常州,新北
Project Area | 项目面积
220㎡
Designer | 设计单位
精成空间设计
Contractor | 施工单位
成舍设计

常州市钟楼区怀德桥后马路南
华景大厦1601室
上海市长宁区红宝石路
188号古北SOHO 1502室
ⓦ:cssj@chanshare.cn
Ⓣ:400-828-9901







